Osielsko, Niemcz

Dom na sprzedaż

Opis nieruchomości

Na sprzedaż 1 część domu dwurodzinnego w stanie deweloperskim wybudowany w 2022 roku w bardzo dobrej lokalizacji w Niemczu. Nowoczesna nieruchomość z garażem w bryle oraz użytkowym poddaszem 60m2 posadowiona jest na działce o powierzchni 525m2. Powierzchnia użytkowa 162,14;
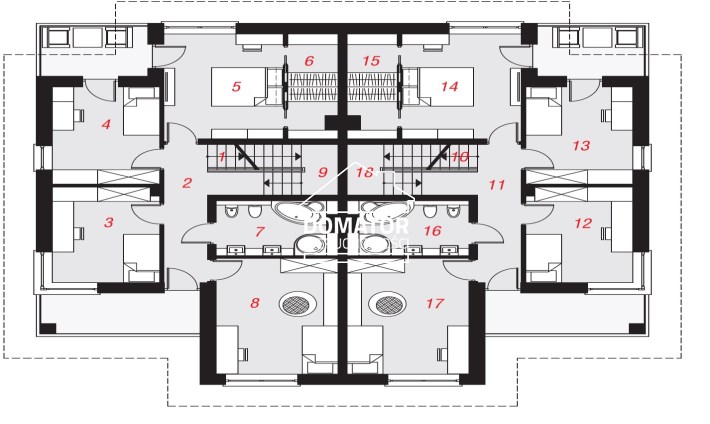
Dom posiada funkcjonalny układ pomieszczeń, które obejmują:
PARTER
- wiatrołap 3.03m2
- korytarz 4,98m2
- salon z jadalnią 32,80 m2 z wyjściem na taras
- kuchnia 10,63 m2
- kotłownia 5,23 m2( po podłodze 7,01m2)
- łazienka 4,12m2
- garaż 19,13m2
PIĘTRO
1. Schody 5,83
2. Korytarz 8,56
3. Pokój 11,43
4. Pokój 11,76
5. Pokój 14,14
6. Garderoba 5,62
7. Łazienka 7,30
8. Pokój 15,95
9. Schody strych.- brak
Wymiary dla jednego mieszkania w budynku szeregowym (dwurodzinnym)
powierzchnia użytkowa: 143,01 m2 + garaż: 19,13 m2 razem 162,14 m2
powierzchnia całkowita: 208,06m2 ( z tarasami i balkonami oraz wiatrołapami przed wejściami gł. ) plus powierzchnia strychu 60 m2
powierzchnia zabudowy: 112,22m2
powierzchnia dachu: 156,70m2
powierzchnia netto: 168,88m2
kubatura brutto: 940,17m3
wysokość budynku: 9 m

Infrastruktura, instalacje : wodna – z sieci wodociągowej ,kanalizacyjna sanitarna ,kanalizacja deszczowa ,elektryczna, c.o i c.w.u. –pompa ciepła typu powietrze –woda wraz z zasobnikiem c.w.u. firmy DIMPLEX , wentylacja grawitacyjna , sieć telekomunikacyjna , podgrzewanie podłogowe, dodatkowe grzejniki elektryczne w łazienkach.
W podpiwniczonej kotłowni z pompą ciepła przewidziano możliwość zagospodarowania pralni i pomieszczenia technicznego.

 Budynek wybudowany z - suporeksu, ocieplony styropianem 20 cm - ceramiczna dachówka w kolorze grafitowym, podbitka, rynny - okna 3 szybowe na niemieckich profilach PCV, antywłamaniowe drzwi wejściowe w kolorze grafitowym - tynk silikonowy w kolorze białym - wewnątrz na ścianach tynki gipsowe, na podłogach wylewki, ogrzewanie podłogowe - rozprowadzone instalacje: elektryczna, wodna, kanalizacyjna,parapety wewnętrzne z granitu w kolorze jasnym , parapety zewnętrzne z blachy aluminiowej powlekanej w kolorze grafitowym , zewnętrzne automatyczne rolety antywłamaniowe na wszystkich oknach , zewnętrzne ogrodzenie domu panelowe, wysokość ogrodzenia 1,7 m ,brama wjazdowa i garażowa automatyczne sterowana, furtka z domofonem , wjazd do garażu , taras , schody tarasowe , wejście zewnętrzne - utwardzony ekskluzywną płytą tarasową Magna , balustrady zewnętrzne szklane.

Instalacje dodatkowe :Wyprowadzenie instalacji wodnej i elektrycznej na podłączenie podlewania ogrodowego, wyprowadzenie instalacji elektrycznej pod klimatyzację w salonie i sypialni , dodatkowa instalacja trójfazowa w garażu np. na ładowanie samochodu elektrycznego oraz na tarasie na podłączenie np. jacuzzi , rozprowadzenie instalacji natryskowej w ogrodzie , led-owe oświetlenie zewnętrzne domu , instalacja pod monitoring oraz alarm, RTV, internet , instalacja pod SMART READY ( inteligentne sterowanie), automatyczne sterowanie bramą wjazdową i garażową , domofon.

Pod indywidualne zamówienie  za dodatkową opłatą: Basen zewnętrzny, fotowoltaika, jacuzzi oraz pomieszczenie gospodarcze na ogrodzie 5 m2 , wbudowanie podziemnego pojemnika na deszczówkę, wykończenie pod klucz wraz z projektem.

W pobliżu znajdują się :
Szkoła Podstawowa 300 m, żłobek 220 m, przedszkole 160m
Przystanek autobusowy 230m
Poczta 220m
Kościół 380 m, boisko 260m
Sklep spożywczy Żabka, ABC 260 m, Sklep POLO 830m
Przychodnia Stomatologiczna 650m rehabilitacyjna 430 m
Galeria Osielsko 2 km, Biedronka 918 m
Hotel i restauracja 1600 m
Myślęcinek –Leśny Park Kultury i Wypoczynku 900 m , Ogród Botaniczny 1240m
Autostrada S5 9km
Cena sprzedaży jednego mieszkania w budynku szeregowym stan deweloperski
  1. Stan deweloperski (w tym automatyczne  podlewanie ogrodowe, wyłożenie kaflami części podpiwniczonej oraz pomalowanie, granitowe parapety wewnętrzne, sterowanie SMART HOME, trawa, nasadzenia, użytkowy strych 60m2) dokładny opis w ofercie, którą załączamy.

Cena: 7894 zł/m2.

Cena łączna: 1 235 000 zł

  1. Stan deweloperski z częściowym wykończeniem, który dodatkowo obejmuje:

Opcja nr 1:

gładzie, malowanie, drzwi wewnętrzne, gniazdka wewnętrzne, posadzkę żywiczną w garażu, kominek

Opcja nr 2:

gładzie z malowaniem i wykonanie pełnej instalacji fotowoltaicznej

Cena: 8572,83 zł/m2

Cena łączna: 1 470 000 zł

Serdecznie zapraszam do kontaktu z chęcią odpowiem na wszystkie Państwa pytania.

Nota prawna

Opis oferty zawarty na stronie internetowej sporządzany jest na podstawie oględzin nieruchomości oraz informacji uzyskanych od właściciela, może podlegać aktualizacji i nie stanowi oferty określonej w art. 66 i następnych K.C.

Szczegóły oferty

Symbol oferty DMT-DS-113116
Powierzchnia 162,00 m²
Powierzchnia działki 525 m²
Liczba pokoi 5
Rodzaj domu bliźniak
Technologia budowlana pustak
Standard
Liczba pięter w budynku 2
Garaż jest
Okna PCV 3 szyby, ciepły montaż
Instalacje ELEKTRYCZNA, GAZOWA, TELEFONICZNA, INTERNETOWA
Balkon duży
Zagosp. działki częściowo zagospodarowana
Ukształtowanie działki płaska
Kształt działki kwadrat
Pokrycie dachu dachówka
Stan budynku do wykończenia
Rok budowy 2022
Gaz brak
Woda inna
Otoczenie działki zabudowane
Ogrzewanie pompa ciepła
Umeblowanie brak
Alarm tak
Odl. do sklepu [m] 260 m
Odl. do szkoły [m] 300 m
Odl. do przedszkola [m] 160 m
Tarasy taras duży
Drzwi antywłamaniowe tak
Rolety antywłamaniowe tak
Prąd jest
Kanalizacja miejska

Kalkulator kredytowy

PLN
%
Wysokość raty

Kalkulator kosztów

PLN
PLN
PLN
PLN
PLN
PLN
%
PLN
Podatek od czynności cywilno-prawnych
Taksa notarialna (opłata notarialna)
VAT od taksy notarialnej (opłaty notarialnej)
Wniosek do WKW
VAT od wniosku do WKW
Prowizja agencji nieruchomości
VAT od prowizji agencji nieruchomości
Wypisy aktu notarialnego - około
RAZEM (cena + opłaty)

Uwaga: mogą wystąpić dodatkowe opłaty za założenie księgi wieczystej oraz ustanowienie hipoteki.

Podobne oferty

dom na sprzedaż - Osielsko, Jagodowo

dom na sprzedaż

Osielsko, Jagodowo
4 pokoje 142,19 m2 6 892,19 zł/m2
dom na sprzedaż - Osielsko

dom na sprzedaż

Osielsko
4 pokoje 143,00 m2 7 342,66 zł/m2
dom na sprzedaż - Osielsko

dom na sprzedaż

Osielsko
5 pokoi 124,45 m2 7 553,23 zł/m2

Napisz do nas

Proszę wypełnić to pole
Proszę wypełnić to pole
Proszę wypełnić to pole
Proszę wypełnić to pole
Trwa wysyłanie...

Ta strona wykorzystuje pliki cookies w celach statystycznych oraz w celu dostosowania naszych serwisów do indywidualnych potrzeb klientów. Zmiany ustawień dotyczących plików cookie można dokonać w dowolnej chwili modyfikując ustawienia przeglądarki. Korzystanie z tej strony bez zmian ustawień dotyczących cookies oznacza, że będą one zapisane w pamięci urządzenia.

rozumiem