Bydgoszcz

Mieszkanie na sprzedaż

Opis nieruchomości

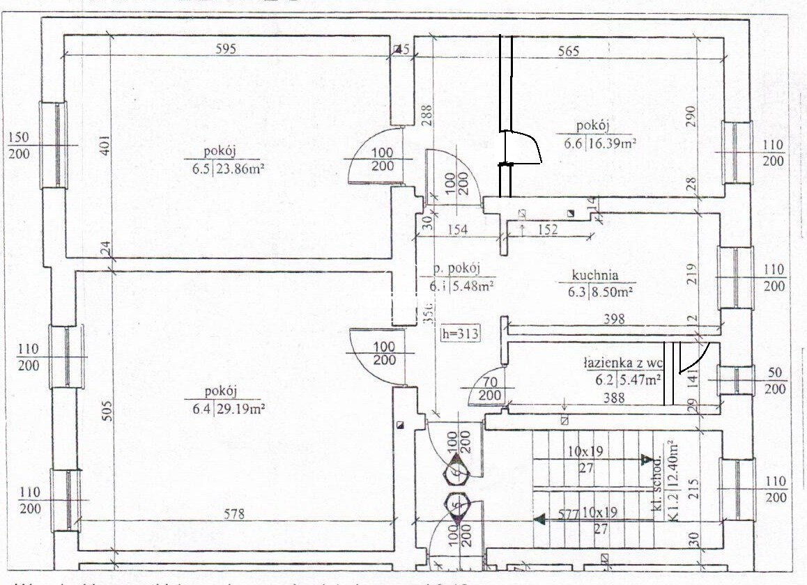
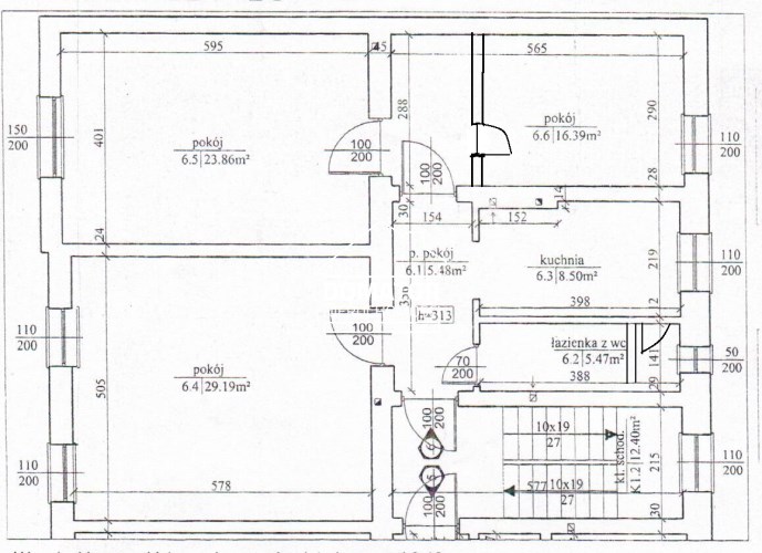
Na sprzedaż mieszkanie 3-pokojowe o powierzchni 88,5 m² w kamienicy po remoncie w 2023 roku. Mieszkanie składa się z trzech pokoi, z możliwością podziału salonu na dwa osobne pomieszczenia. Posiada osobną kuchnię, łazienkę oraz korytarz. Lokal jest słoneczny, ciepły i wysoki.

W 2023 roku wykonano remont obejmujący nową instalację wodno-kanalizacyjną, montaż pieca gazowego z zamkniętą komorą i sterownikiem radiowym oraz klimatyzacji.

Budynek jest objęty monitoringiem i ochroną. W mieszkaniu jest częściowo umeblowane, pozostaje w cenie zmywarka, lodówka, kuchenka, piekarnik i klimatyzacja. Dodatkowe zabezpieczenia stanowią rolety antywłamaniowe oraz domofon. Dostępne są również media: internet i telewizja kablowa.

Nota prawna

Opis oferty zawarty na stronie internetowej sporządzany jest na podstawie oględzin nieruchomości oraz informacji uzyskanych od właściciela, może podlegać aktualizacji i nie stanowi oferty określonej w art. 66 i następnych K.C.

Szczegóły oferty

Symbol oferty DMT-MS-113497
Powierzchnia 88,50 m²
Powierzchnia użytkowa 88,50 m²
Liczba pokoi 3
Piętro 2
Rodzaj budynku kamienica
Standard
Opłaty w czynszu administracja, Części wspólne, ochrona, wywóz śmieci
Opłaty wg liczników gaz, prąd, Woda ciepła, Woda zimna
Liczba pięter w budynku 2
Piwnica 9,00 m²
Stan lokalu do wprowadzenia
Mies. czynsz admin. 900 PLN
Okna PCV
Instalacje ELEKTRYCZNA, GAZOWA
Balkon brak
Rok budowy 1900
Gaz tak - miejski
Woda jest
Dojazd ASFALTOWA
Otoczenie centrum miasta
Ogrzewanie C.O. GAZOWE
Umeblowanie częściowo umeblowane

Pomieszczenia

Typ kuchni oddzielna
Rodzaj kuchni jasna z oknem

Kalkulator kredytowy

PLN
%
Wysokość raty

Kalkulator kosztów

PLN
PLN
PLN
PLN
PLN
PLN
%
PLN
Podatek od czynności cywilno-prawnych
Taksa notarialna (opłata notarialna)
VAT od taksy notarialnej (opłaty notarialnej)
Wniosek do WKW
VAT od wniosku do WKW
Prowizja agencji nieruchomości
VAT od prowizji agencji nieruchomości
Wypisy aktu notarialnego - około
RAZEM (cena + opłaty)

Uwaga: mogą wystąpić dodatkowe opłaty za założenie księgi wieczystej oraz ustanowienie hipoteki.

Podobne oferty

mieszkanie na sprzedaż - Bydgoszcz, Bocianowo

mieszkanie na sprzedaż

Bydgoszcz, Bocianowo
4 pokoje 82,42 m2 7 522,45 zł/m2
oferta na wyłączność
mieszkanie na sprzedaż - Bydgoszcz, Fordon

mieszkanie na sprzedaż

Bydgoszcz, Fordon
3 pokoje 71,00 m2 6 338,03 zł/m2
mieszkanie na sprzedaż - Bydgoszcz, Śródmieście

mieszkanie na sprzedaż

Bydgoszcz, Śródmieście
4 pokoje 116,00 m2 4 568,97 zł/m2
mieszkanie na sprzedaż - Bydgoszcz, Centrum

mieszkanie na sprzedaż

Bydgoszcz, Centrum
3 pokoje 70,51 m2 5 956,60 zł/m2

Napisz do nas

Proszę wypełnić to pole
Proszę wypełnić to pole
Proszę wypełnić to pole
Proszę wypełnić to pole
Trwa wysyłanie...

Ta strona wykorzystuje pliki cookies w celach statystycznych oraz w celu dostosowania naszych serwisów do indywidualnych potrzeb klientów. Zmiany ustawień dotyczących plików cookie można dokonać w dowolnej chwili modyfikując ustawienia przeglądarki. Korzystanie z tej strony bez zmian ustawień dotyczących cookies oznacza, że będą one zapisane w pamięci urządzenia.

rozumiem