Bydgoszcz

Mieszkanie na sprzedaż

Opis nieruchomości

Mieszkanie na sprzedaż – 54,78 m², centrum miasta

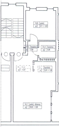
Na sprzedaż przestronne dwupokojowe mieszkanie o powierzchni 54,78 m², położone w samym centrum miasta, w ocieplonym bloku. Lokal znajduje się na poddaszu, co nadaje mu wyjątkowy charakter i zapewnia świetne doświetlenie dzięki pięciu oknom dachowym: trzem w salonie i dwóm w sypialni.

Układ pomieszczeń
Mieszkanie składa się z dużego, jasnego salonu, przytulnej sypialni, oddzielnej kuchni z możliwością jej otwarcia i połączenia z salonem, przestronnego korytarza z miejscem na zabudowę oraz łazienki wyposażonej w wannę, umywalkę i WC. Istnieje możliwość zmiany układu ścian działowych, co daje szerokie możliwości aranżacyjne, także pod open space.

Media i wyposażenie
W mieszkaniu dostępne jest ogrzewanie miejskie, gaz, prąd, internet i woda. Do lokalu przynależy również piwnica.

Koszty 
Cena nieruchomości wynosi 394 416 zł.
Czynsz do wspólnoty to około 410 zł miesięcznie.

Atuty nieruchomości i lokalizacji
Mieszkanie położone jest w ścisłym centrum, dzięki czemu wszystkie najważniejsze udogodnienia znajdują się w zasięgu kilku minut: sklepy, przedszkole, szkoły, punkty usługowe i komunikacja miejska. Jasne wnętrza, ocieplony budynek oraz możliwość dowolnej aranżacji sprawiają, że nieruchomość doskonale nadaje się zarówno do zamieszkania, jak i jako inwestycja.

Zapraszamy na prezentację i do kontaktu.

Nota prawna

Opis oferty zawarty na stronie internetowej sporządzany jest na podstawie oględzin nieruchomości oraz informacji uzyskanych od właściciela, może podlegać aktualizacji i nie stanowi oferty określonej w art. 66 i następnych K.C.

Szczegóły oferty

Symbol oferty DMT-MS-113643
Powierzchnia 54,78 m²
Powierzchnia użytkowa 54,78 m²
Liczba pokoi 2
Piętro poddasze
Rodzaj budynku blok
Liczba pięter w budynku 2
Stan lokalu do odnowienia
Okna PCV
Instalacje ELEKTRYCZNA, WODNA, GAZOWA
Balkon brak
Rok budowy 2000
Widok na inne budynki
Gaz tak - miejski
Woda ciepła - miejska
Dojazd ASFALTOWA
Otoczenie centrum miasta
Ogrzewanie centralne
Odległość do komunikacji publicznej [m] 50 m
Odl. do sklepu [m] 50 m
Odl. do szkoły [m] 100 m
Odl. do przedszkola [m] 100 m

Lokalizacja

Kalkulator kredytowy

PLN
%
Wysokość raty

Kalkulator kosztów

PLN
PLN
PLN
PLN
PLN
PLN
%
PLN
Podatek od czynności cywilno-prawnych
Taksa notarialna (opłata notarialna)
VAT od taksy notarialnej (opłaty notarialnej)
Wniosek do WKW
VAT od wniosku do WKW
Prowizja agencji nieruchomości
VAT od prowizji agencji nieruchomości
Wypisy aktu notarialnego - około
RAZEM (cena + opłaty)

Uwaga: mogą wystąpić dodatkowe opłaty za założenie księgi wieczystej oraz ustanowienie hipoteki.

Podobne oferty

mieszkanie na sprzedaż - Bydgoszcz, Centrum

mieszkanie na sprzedaż

Bydgoszcz, Centrum
4 pokoje 58,50 m2 5 128,21 zł/m2
oferta na wyłączność
mieszkanie na sprzedaż - Bydgoszcz, Fordon

mieszkanie na sprzedaż

Bydgoszcz, Fordon
3 pokoje 71,00 m2 6 830,99 zł/m2
oferta na wyłączność
mieszkanie na sprzedaż - Bydgoszcz, Centrum

mieszkanie na sprzedaż

Bydgoszcz, Centrum
3 pokoje 70,51 m2 5 247,48 zł/m2
mieszkanie na sprzedaż - Bydgoszcz, Bocianowo

mieszkanie na sprzedaż

Bydgoszcz, Bocianowo
3 pokoje 77,65 m2 5 099,81 zł/m2

Napisz do nas

Proszę wypełnić to pole
Proszę wypełnić to pole
Proszę wypełnić to pole
Proszę wypełnić to pole
Trwa wysyłanie...

Ta strona wykorzystuje pliki cookies w celach statystycznych oraz w celu dostosowania naszych serwisów do indywidualnych potrzeb klientów. Zmiany ustawień dotyczących plików cookie można dokonać w dowolnej chwili modyfikując ustawienia przeglądarki. Korzystanie z tej strony bez zmian ustawień dotyczących cookies oznacza, że będą one zapisane w pamięci urządzenia.

rozumiem