Bydgoszcz, Śródmieście

Mieszkanie na sprzedaż

Opis nieruchomości

Mieszkanie 49,75 m² – centrum | parter | duży potencjał

Na sprzedaż jasne i ustawne mieszkanie o powierzchni 49,75 m², położone na parterze ocieplonego budynku z 2000 roku, w ścisłym centrum miasta.

Lokal dobrze doświetlony, z funkcjonalnym układem i dużymi możliwościami aranżacyjnymi – zarówno do zamieszkania, jak i pod działalność lub wynajem.

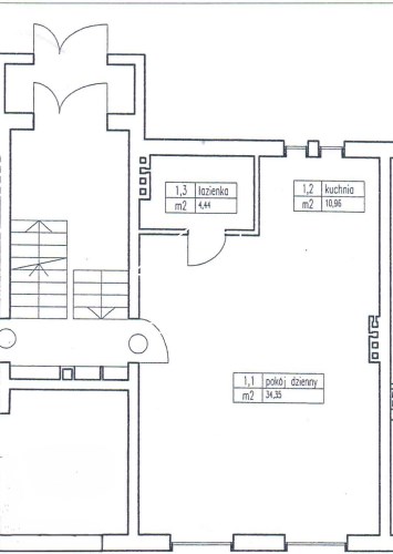
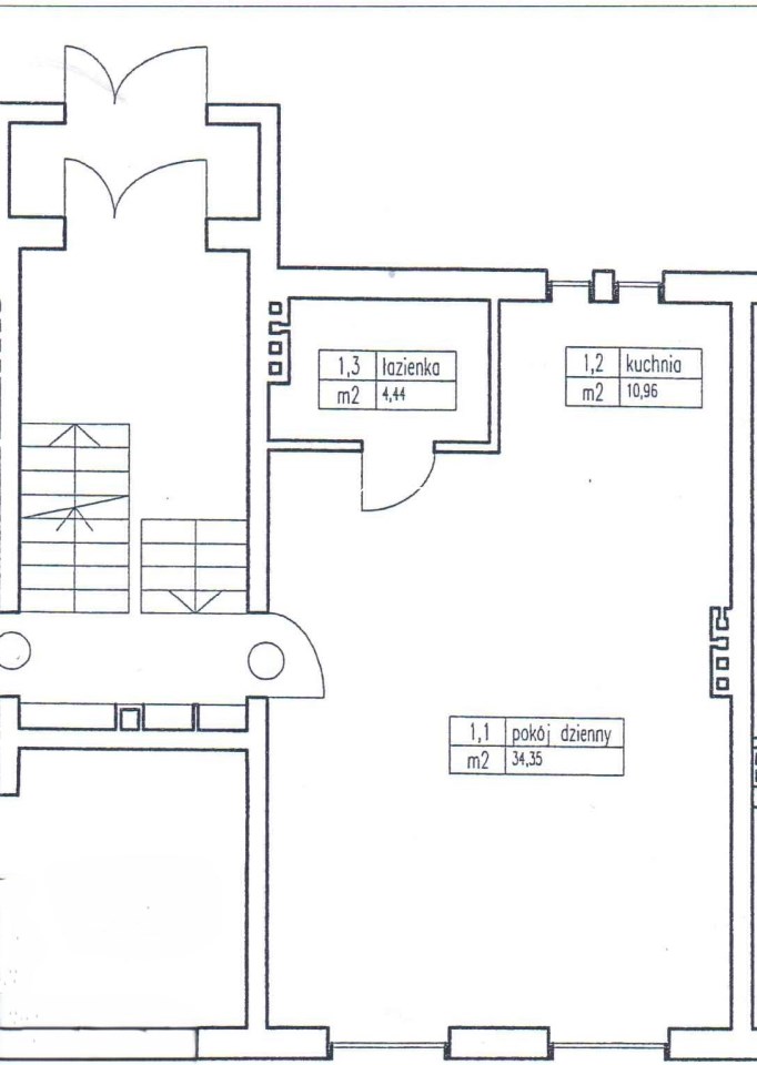
Układ:

  • pokój dzienny z aneksem kuchennym (możliwość wydzielenia osobnej kuchni lub dodatkowego pokoju)

  • łazienka – 4,44 m²

  • kuchnia – 10,96 m² (po wydzieleniu)

  • pokój dzienny – 34,35 m²

Możliwości:

  • podział na 2 niezależne pokoje

  • wydzielenie oddzielnej kuchni

  • adaptacja na lokal usługowy (parter, dobre doświetlenie, wygodny dostęp)

Dodatkowe informacje:

  • piwnica w cenie

  • czynsz: ok. 448 zł

  • wszystkie media miejskie (ogrzewanie, woda, gaz, prąd, internet)

Budynek i lokalizacja:

  • blok ocieplony, zadbany

  • wygodna klatka schodowa

  • ścisłe centrum – szybki dostęp do sklepów, komunikacji, szkół i usług

Cena: 368 150 zł

Mieszkanie sprawdzi się jako wygodne miejsce do życia lub inwestycja z możliwością różnych aranżacji.

Zapraszamy do kontaktu i na prezentację.

Nota prawna

Opis oferty zawarty na stronie internetowej sporządzany jest na podstawie oględzin nieruchomości oraz informacji uzyskanych od właściciela, może podlegać aktualizacji i nie stanowi oferty określonej w art. 66 i następnych K.C.

Szczegóły oferty

Symbol oferty DMT-MS-113696
Powierzchnia 49,75 m²
Powierzchnia użytkowa 49,75 m²
Liczba pokoi 1
Piętro parter
Rodzaj budynku blok
Liczba pięter w budynku 2
Stan lokalu do odnowienia
Okna PCV
Instalacje ELEKTRYCZNA, WODNA, GAZOWA
Balkon brak
Rok budowy 2000
Gaz jest
Woda ciepła - miejska
Dojazd asfalt
Otoczenie centrum miasta
Ogrzewanie centralne
Odległość do komunikacji publicznej [m] 50 m
Odl. do sklepu [m] 50 m
Odl. do szkoły [m] 100 m
Odl. do przedszkola [m] 100 m

Lokalizacja

Kalkulator kredytowy

PLN
%
Wysokość raty

Kalkulator kosztów

PLN
PLN
PLN
PLN
PLN
PLN
%
PLN
Podatek od czynności cywilno-prawnych
Taksa notarialna (opłata notarialna)
VAT od taksy notarialnej (opłaty notarialnej)
Wniosek do WKW
VAT od wniosku do WKW
Prowizja agencji nieruchomości
VAT od prowizji agencji nieruchomości
Wypisy aktu notarialnego - około
RAZEM (cena + opłaty)

Uwaga: mogą wystąpić dodatkowe opłaty za założenie księgi wieczystej oraz ustanowienie hipoteki.

Podobne oferty

mieszkanie na sprzedaż - Bydgoszcz, Centrum

mieszkanie na sprzedaż

Bydgoszcz, Centrum
4 pokoje 58,50 m2 5 128,21 zł/m2
oferta na wyłączność
mieszkanie na sprzedaż - Bydgoszcz, Centrum

mieszkanie na sprzedaż

Bydgoszcz, Centrum
3 pokoje 70,51 m2 5 956,60 zł/m2
mieszkanie na sprzedaż - Bydgoszcz, Bocianowo

mieszkanie na sprzedaż

Bydgoszcz, Bocianowo
3 pokoje 77,65 m2 5 099,81 zł/m2
mieszkanie na sprzedaż - Bydgoszcz, Bocianowo

mieszkanie na sprzedaż

Bydgoszcz, Bocianowo
4 pokoje 69,65 m2 5 398,42 zł/m2

Napisz do nas

Proszę wypełnić to pole
Proszę wypełnić to pole
Proszę wypełnić to pole
Proszę wypełnić to pole
Trwa wysyłanie...

Ta strona wykorzystuje pliki cookies w celach statystycznych oraz w celu dostosowania naszych serwisów do indywidualnych potrzeb klientów. Zmiany ustawień dotyczących plików cookie można dokonać w dowolnej chwili modyfikując ustawienia przeglądarki. Korzystanie z tej strony bez zmian ustawień dotyczących cookies oznacza, że będą one zapisane w pamięci urządzenia.

rozumiem