Bydgoszcz

Mieszkanie na sprzedaż

Opis nieruchomości

MIESZKANIE NA SPRZEDAŻ, 49,75 m² – CENTRUM MIASTA

Na sprzedaż ustawne i jasne mieszkanie o powierzchni 49,75 m², położone na parterze ocieplonego bloku z 2000 roku. Budynek znajduje się w samym centrum miasta, co zapewnia szybki dostęp do pełnej infrastruktury – sklepów, komunikacji, punktów usługowych i szkół.

Do mieszkania przynależy piwnica, a miesięczny czynsz do wspólnoty wynosi ok 448 zł.
Cena: 368 150 zł


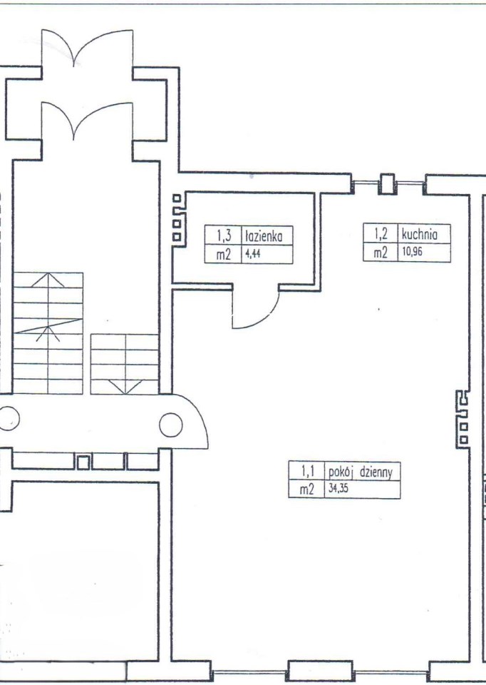
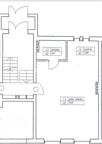
UKŁAD I MOŻLIWOŚCI ARANŻACJI

  • Pokój dzienny z aneksem kuchennym o dużej powierzchni – istnieje możliwość:
    • wydzielenia osobnej kuchni,
    • podziału pokoju dziennego na dwa niezależne pokoje,
    • przekształcenia lokalu w pomieszczenie usługowe (parter, duże okna, wejście z klatki).
  • Łazienka – 4,44 m²
  • Kuchnia – 10,96 m² (jeśli wydzielona)
  • Pokój dzienny – 34,35 m²

Mieszkanie ma duże okna, dzięki czemu wnętrze jest dobrze doświetlone.


BUDYNEK I OTOCZENIE

  • Blok ocieplony z zadbaną elewacją.
  • Klatka schodowa szeroka i wygodna.
  • Lokalizacja: ścisłe centrum miasta – wszędzie blisko.

MEDIA I OGRZEWANIE

W mieszkaniu dostępne są wszystkie media:

  • centralne ogrzewanie miejskie,
  • ciepła woda miejska,
  • gaz,
  • prąd,
  • internet.

ATUTY NIERUCHOMOŚCI

  • Parter — idealne dla seniorów, rodzin z dziećmi lub pod działalność usługową.
  • Elastyczny układ – duży potencjał aranżacyjny.
  • Możliwość wykorzystania jako lokal usługowy.
  • Atrakcyjna inwestycja w centrum.

Zapraszamy do kontaktu!

Chętnie udzielimy dodatkowych informacji i umówimy prezentację.

 

Nota prawna

Opis oferty zawarty na stronie internetowej sporządzany jest na podstawie oględzin nieruchomości oraz informacji uzyskanych od właściciela, może podlegać aktualizacji i nie stanowi oferty określonej w art. 66 i następnych K.C.

Szczegóły oferty

Symbol oferty DMT-MS-113641
Powierzchnia 49,75 m²
Powierzchnia użytkowa 49,75 m²
Liczba pokoi 1
Piętro parter
Rodzaj budynku blok
Liczba pięter w budynku 2
Stan lokalu do odnowienia
Okna PCV
Instalacje ELEKTRYCZNA, WODNA, GAZOWA
Balkon brak
Rok budowy 2000
Gaz jest
Woda ciepła - miejska
Dojazd asfalt
Otoczenie centrum miasta
Ogrzewanie centralne
Umeblowanie brak
Odległość do komunikacji publicznej [m] 50 m
Odl. do sklepu [m] 50 m
Odl. do szkoły [m] 100 m
Odl. do przedszkola [m] 100 m

Lokalizacja

Kalkulator kredytowy

PLN
%
Wysokość raty

Kalkulator kosztów

PLN
PLN
PLN
PLN
PLN
PLN
%
PLN
Podatek od czynności cywilno-prawnych
Taksa notarialna (opłata notarialna)
VAT od taksy notarialnej (opłaty notarialnej)
Wniosek do WKW
VAT od wniosku do WKW
Prowizja agencji nieruchomości
VAT od prowizji agencji nieruchomości
Wypisy aktu notarialnego - około
RAZEM (cena + opłaty)

Uwaga: mogą wystąpić dodatkowe opłaty za założenie księgi wieczystej oraz ustanowienie hipoteki.

Podobne oferty

mieszkanie na sprzedaż - Bydgoszcz, Centrum

mieszkanie na sprzedaż

Bydgoszcz, Centrum
4 pokoje 58,50 m2 5 128,21 zł/m2
oferta na wyłączność
mieszkanie na sprzedaż - Bydgoszcz, Fordon

mieszkanie na sprzedaż

Bydgoszcz, Fordon
3 pokoje 71,00 m2 6 338,03 zł/m2
mieszkanie na sprzedaż - Bydgoszcz, Centrum

mieszkanie na sprzedaż

Bydgoszcz, Centrum
3 pokoje 70,51 m2 5 956,60 zł/m2
mieszkanie na sprzedaż - Bydgoszcz, Bocianowo

mieszkanie na sprzedaż

Bydgoszcz, Bocianowo
2 pokoje 40,27 m2 11 025,58 zł/m2

Napisz do nas

Proszę wypełnić to pole
Proszę wypełnić to pole
Proszę wypełnić to pole
Proszę wypełnić to pole
Trwa wysyłanie...

Ta strona wykorzystuje pliki cookies w celach statystycznych oraz w celu dostosowania naszych serwisów do indywidualnych potrzeb klientów. Zmiany ustawień dotyczących plików cookie można dokonać w dowolnej chwili modyfikując ustawienia przeglądarki. Korzystanie z tej strony bez zmian ustawień dotyczących cookies oznacza, że będą one zapisane w pamięci urządzenia.

rozumiem