Bydgoszcz

Mieszkanie na wynajem

Opis nieruchomości

Mieszkanie na wynajem – 54,78 m² | Centrum miasta

Do wynajęcia przestronne i jasne mieszkanie o powierzchni 54,78 m², zlokalizowane w ścisłym centrum miasta, w ocieplonym bloku. Lokal znajduje się na poddaszu, co zapewnia bardzo dobre doświetlenie wnętrz dzięki pięciu oknom dachowym (trzy w salonie, dwa w sypialni) oraz nadaje mieszkaniu wyjątkowy charakter.

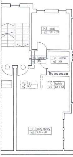
Układ pomieszczeń
Mieszkanie składa się z przestronnego salonu, sypialni, oddzielnej kuchni, dużego korytarza oraz łazienki z wanną, umywalką i WC.
Istnieje możliwość zmiany układu ścian działowych, co daje duży potencjał aranżacyjny.

Media i informacje dodatkowe
Ogrzewanie miejskie. Dostępne media: gaz, prąd, woda oraz internet. Do mieszkania przynależy piwnica.

Koszty
Czynsz najmu wynosi 2714 zł i zawiera czynsz administracyjny.
Dodatkowo płatne: gaz i energia elektryczna (przepisywane na najemcę) oraz woda według zużycia.
Kaucja w wysokości dwumiesięcznego czynszu, z możliwością rozłożenia na dwie raty.

Lokalizacja
Mieszkanie położone jest w centrum miasta, w pobliżu sklepów, szkół, przedszkoli, punktów usługowych oraz komunikacji miejskiej.

Dodatkowe informacje
Preferowany najem instytucjonalny.
Umeblowanie do uzgodnienia z właścicielem.

Zapraszamy do kontaktu oraz na prezentację mieszkania.

Nota prawna

Opis oferty zawarty na stronie internetowej sporządzany jest na podstawie oględzin nieruchomości oraz informacji uzyskanych od właściciela, może podlegać aktualizacji i nie stanowi oferty określonej w art. 66 i następnych K.C.

Szczegóły oferty

Symbol oferty DMT-MW-113707
Powierzchnia 54,78 m²
Powierzchnia użytkowa 54,78 m²
Liczba pokoi 2
Piętro poddasze
Rodzaj budynku blok
Liczba pięter w budynku 2
Stan lokalu do odnowienia
Okna PCV
Instalacje ELEKTRYCZNA, WODNA, GAZOWA
Balkon brak
Rok budowy 2000
Widok na inne budynki
Gaz tak - miejski
Woda ciepła - miejska
Dojazd ASFALTOWA
Otoczenie centrum miasta
Ogrzewanie centralne
Odległość do komunikacji publicznej [m] 50 m
Odl. do sklepu [m] 50 m
Odl. do szkoły [m] 100 m
Odl. do przedszkola [m] 100 m

Lokalizacja

Podobne oferty

mieszkanie na wynajem - Bydgoszcz, Czyżkówko

mieszkanie na wynajem

Bydgoszcz, Czyżkówko
2 pokoje 30,00 m2 80,00 zł/m2
mieszkanie na wynajem - Bydgoszcz, Glinki

mieszkanie na wynajem

Bydgoszcz, Glinki
2 pokoje 40,00 m2 57,50 zł/m2
mieszkanie na wynajem - Bydgoszcz, Osiedle Leśne

mieszkanie na wynajem

Bydgoszcz, Osiedle Leśne
2 pokoje 41,34 m2 50,80 zł/m2
mieszkanie na wynajem - Bydgoszcz, Bartodzieje

mieszkanie na wynajem

Bydgoszcz, Bartodzieje
2 pokoje 39,00 m2 64,10 zł/m2

Napisz do nas

Proszę wypełnić to pole
Proszę wypełnić to pole
Proszę wypełnić to pole
Proszę wypełnić to pole
Trwa wysyłanie...

Ta strona wykorzystuje pliki cookies w celach statystycznych oraz w celu dostosowania naszych serwisów do indywidualnych potrzeb klientów. Zmiany ustawień dotyczących plików cookie można dokonać w dowolnej chwili modyfikując ustawienia przeglądarki. Korzystanie z tej strony bez zmian ustawień dotyczących cookies oznacza, że będą one zapisane w pamięci urządzenia.

rozumiem