Bydgoszcz, Centrum

Mieszkanie na wynajem

Opis nieruchomości

Mieszkanie w centrum miasta – 48,75 m² | Na wynajem

Do wynajęcia funkcjonalne mieszkanie o powierzchni 48,75 m², położone w ścisłym centrum miasta. Lokal znajduje się na parterze zadbanego, ocieplonego budynku z 2000 roku. 

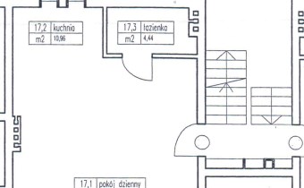
Układ mieszkania:

  • przestronny pokój dzienny 
  • aneks kuchenny 
  • jasna i ustawna łazienka z prysznicem
  • duże okna zapewniające bardzo dobre doświetlenie wnętrza

Mieszkanie jest częściowo odświeżone. Jasne ściany i funkcjonalny układ pozwalają na łatwe dopasowanie przestrzeni do własnych potrzeb.

Dodatkowe informacje:

  • wszystkie media miejskie: woda, centralne ogrzewanie, gaz, prąd, 
  • do mieszkania przynależy piwnica
  • budynek ocieplony i zadbany

Koszty:

  • czynsz najmu: 2416 zł (w tym czynsz administracyjny)
  • dodatkowo płatne: prąd i gaz (przepisane na najemcę) oraz woda według zużycia
  • kaucja: dwumiesięczna (z możliwością rozłożenia na dwie raty)

Warunki najmu:

  • preferowany najem instytucjonalny
  • umeblowanie do ustalenia z właścicielem

Lokalizacja:
Nieruchomość znajduje się w ścisłym centrum miasta. W bezpośrednim sąsiedztwie dostępne są sklepy, szkoły, przedszkola oraz pełna infrastruktura usługowa – wszystko w zasięgu krótkiego spaceru.

Mieszkanie daje duże możliwości aranżacyjne.
Zapraszamy!

Nota prawna

Opis oferty zawarty na stronie internetowej sporządzany jest na podstawie oględzin nieruchomości oraz informacji uzyskanych od właściciela, może podlegać aktualizacji i nie stanowi oferty określonej w art. 66 i następnych K.C.

Szczegóły oferty

Symbol oferty DMT-MW-113710
Powierzchnia 48,75 m²
Powierzchnia użytkowa 48,75 m²
Liczba pokoi 1
Piętro niski parter
Rodzaj budynku blok
Liczba pięter w budynku 2
Stan lokalu do odnowienia
Okna PCV
Instalacje ELEKTRYCZNA, WODNA, GAZOWA
Balkon brak
Rok budowy 2000
Widok na inne budynki
Gaz jest
Woda ciepła - miejska
Dojazd ASFALTOWA
Otoczenie centrum miasta
Ogrzewanie centralne
Odległość do komunikacji publicznej [m] 50 m
Odl. do sklepu [m] 50 m
Odl. do szkoły [m] 100 m
Odl. do przedszkola [m] 100 m

Lokalizacja

Podobne oferty

mieszkanie na wynajem - Bydgoszcz, Czyżkówko

mieszkanie na wynajem

Bydgoszcz, Czyżkówko
2 pokoje 30,00 m2 80,00 zł/m2
mieszkanie na wynajem - Bydgoszcz, Glinki

mieszkanie na wynajem

Bydgoszcz, Glinki
2 pokoje 40,00 m2 57,50 zł/m2
mieszkanie na wynajem - Bydgoszcz, Osiedle Leśne

mieszkanie na wynajem

Bydgoszcz, Osiedle Leśne
2 pokoje 41,34 m2 50,80 zł/m2
mieszkanie na wynajem - Bydgoszcz, Bartodzieje

mieszkanie na wynajem

Bydgoszcz, Bartodzieje
2 pokoje 39,00 m2 64,10 zł/m2

Napisz do nas

Proszę wypełnić to pole
Proszę wypełnić to pole
Proszę wypełnić to pole
Proszę wypełnić to pole
Trwa wysyłanie...

Ta strona wykorzystuje pliki cookies w celach statystycznych oraz w celu dostosowania naszych serwisów do indywidualnych potrzeb klientów. Zmiany ustawień dotyczących plików cookie można dokonać w dowolnej chwili modyfikując ustawienia przeglądarki. Korzystanie z tej strony bez zmian ustawień dotyczących cookies oznacza, że będą one zapisane w pamięci urządzenia.

rozumiem